国际再生医学产业园
您的位置: 北京园区出租 大兴园区出租 大兴机场临空经济区园区出租 再生医学创新产业园出租房源

大兴生物医药5000平独栋,层高6米承重1吨,丙级消防,直租

房源编号:QZ2205347个月前更新96 次浏览

182500 元/月 (单价:1.5元/m²/天)
  • 4000m²

    房源面积

  • 整栋

    出租方式

  • 精装修

    装修情况

  • 使用率:100%
  • 是否可注册:
  • 楼层信息:中区(共5)
  • 所属楼盘:再生医学创新产业园
  • 地址:[大兴]-[大兴机场临空经济区] 再生医学创新产业园 地图
  • 地铁:距离地铁

李米高(有96位用户正在浏览,抓紧联系哦~)

13911108967

抢先预约看房

为更好的为您服务 ,咨询时请说明来自“企租网”

1/--

概况描述

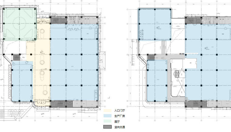
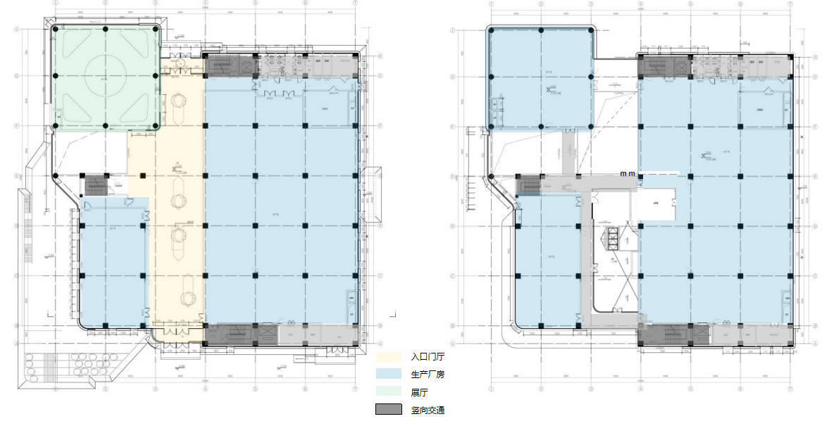
再生医学丨医疗器械丨医药研发丨医药流通丨装备耗材丨服务外包丨医疗健康丨检验检测 【招商面积】 单层面积:1300㎡、1600㎡、2000㎡、2800㎡ (单层可分割) 单栋面积:4000㎡、5000㎡、6000㎡、8000㎡、10000㎡ 【项目规模】总建筑面积10万㎡ 【园区配套】园区内部配有员工餐厅、便利店、咖啡厅、共享展厅和多功能会议室 【层 高】层高6米、7米 【楼板承重】首层承重1000kg/㎡ 、标准层800kg/㎡ 【柱 距】柱距8.4*8.4米 【电量配置】185w/㎡ 【消防等级】丙级 【电梯配置】1客梯1货梯(货梯2吨) 【制冷供暖】制冷:中央空调;供暖:以地源热泵和市政供暖为主 【其他配置】工业蒸汽、预留设备吊装区域 、按生产模块预留废水处理机房 【交付标准】公区修,室内四白落地、环氧地坪 【政策支持】可享受北京市、中关村、大兴区、临空区、自贸区、综保区等多重政策加持
所属楼盘: 再生医学创新产业园 楼层信息: 中区(共5)
房源面积: 4000m² 使用率: 100%
装修情况: 精装修(可分割) 可容纳工位: --
可否注册: 出租方式: 整栋
物业费: -- 免租期: --
最短租期: -- 付款方式: 月付
看房时间: 随时可看

特色标签

免租优惠 免费车位 包物业费 可注册 地铁10分钟 带办公家具 户型方正

交通优势

  • 地铁:

    --

  • 公交:

    附近有937路、X102路、兴61路、兴63路、兴航城1路、兴航城1路大站快车晚高峰、兴航城1路大站快车早高峰、兴航城1路区间等多条公交线路,出行更方便!

周边配套

  • 餐饮:

    聚福源四季涮肉(榆垡店)、知心巷串串香火锅(知新巷店)、尚方宝剑小郡肝串串香火锅(空港新苑店)、晋味人家、汇良阁饺子馆(榆垡店)、粥拌鲜(大兴店)、独一处鲜饺子(空港新苑店)、杭州小笼包、空港一号烤肉拌饭、高老三羊棒骨(西胡林店)等;

  • 娱乐:

    榆垡文化广场、福康盲人按摩、西胡林文化大院、榆垡文化生活广场、首都师范大学科德学院剧院、千亩设施采摘园等;

  • 银行:

    平安银行(北京大兴新航城支行)、中国农业银行24小时自助银行(榆垡镇榆垡路北榆垡分理处)、中国农业银行(北京榆垡支行)、北京农商银行24小时自助银行(榆垡支行)、北京市农村商业银行(榆垡支行)、华夏银行ATM(德馨路)、兴业银行24小时自助银行(榆垡支行)、兴业银行(北京大兴榆垡支行)等;

附近类似待租房源

暂无相关房源信息,我要投放房源, 免费发布

地图位置 [切换全景]

根据浏览,猜你喜欢换一批

1/--